Overview

CDC Residencia, amid-rise, mixed residential complex, is a state of the art structure catering the needs of the customers. Complemented by a modern architecture and a focal location in Askari 11, Lahore.

Askari Towers sits as the most desirable address. An effortless approach to ring road and a slight yet serene drive to the Airport makes Askari Towers the residence of the explorers.

  • Status Under Construction
  • Location Sector-D Askari XI, Bedian Road, Lahore.
  • Type Luxury Apartments

Amenities

Gym

Exceptional Finishes & Fixtures

Games

Mosque

High Speed Elevators

Reception

Swimming Pool

Covered Car Parking

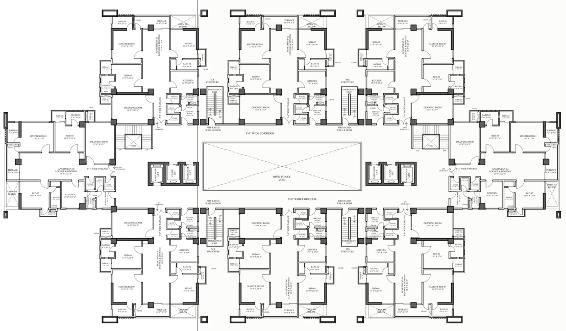
Typical Floor Plan

Location

Address

HEAD OFFICE:

RESIDENCIA
Building 110, Ground Floor, Fairways Commercial Centre, D.H.A. Phase 6, Lahore

SITE OFFICE:

Sector-D Askari XI, Bedian Road, Lahore.

Get in touch

phone

+92 324 876 4004

Lahore, Pakistan.

about us

AAZ Estate & Builders delivers top-tier real estate services in Pakistan, offering trusted solutions, expert guidance, prime properties, and unmatched professionalism for buying, selling, and investing with confidence.

Newsletter

Get latest news & update

© 2025 – AAZ Estate & Builders. All rights reserved.

Carefully crafted by Technnovations.